Vă prezentăm o bucătărie în trend Loft combinat cu Minimalism. Sunt incluse în proiect materialele PAL - Kastamonu pentru blat și carcasă , MDF - RAL pentru fasade, producătorul mecanismelor este compania Austriacă Blum. Mânerele în stil minimalist oferă senzația de spațiu și siguranță la atingerile întâmplătoare. Dulapurile suspendate au prezente vitrine închise precum și deschise cu uși din sticlă și metal, ce pot fi completate cu LED la cerința clientului. Texturile sunt amenajate într-o poziție corespunzătoare priorității din bucătărie, ceea ce nu va distrage atenția în timpul gătitului și vă va putea ajuta cu aranjarea ustensilelor și tacâmurilor primordiale din viața de zi cu zi așa încât să vă puteți relaxa în bucătărie chiar și în timpul gătirii rapide a micului dejun.
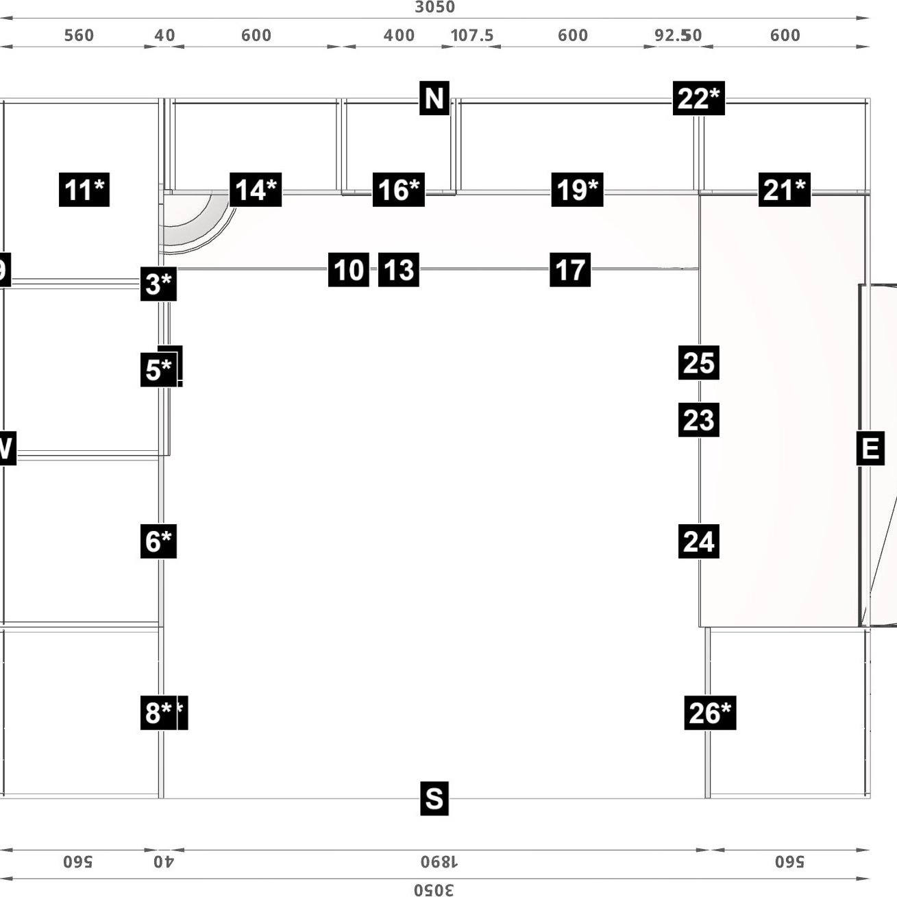
Dimensiuni : Lungime - 3050 mm
Adâncime - 2450 mm
Înălțime - 2650 mm
Termen de realizare 30-45 zile.
Ne puteți vizita pe Instagram și Facebook pentru a fi la curent cu cele mai noi proiecte realizate de Lumi.
*Cel mai accesibil preț din descriere reprezintă cea mai mică sumă cu care puteți achiziționa această bucătărie păstrând acelaș vizual. Se modifică doar tipul materialului, furniturii, organizatoarelor și a blatului!
Designer de bucătărie online
Profită de un serviciu unic de amenajări interioare în toate detaliile. Comandarea unei bucătărie cu un astfel de proiect va fi mult mai ușoară și mai convenabilă.
















