Bucătărie clasică Nr.1
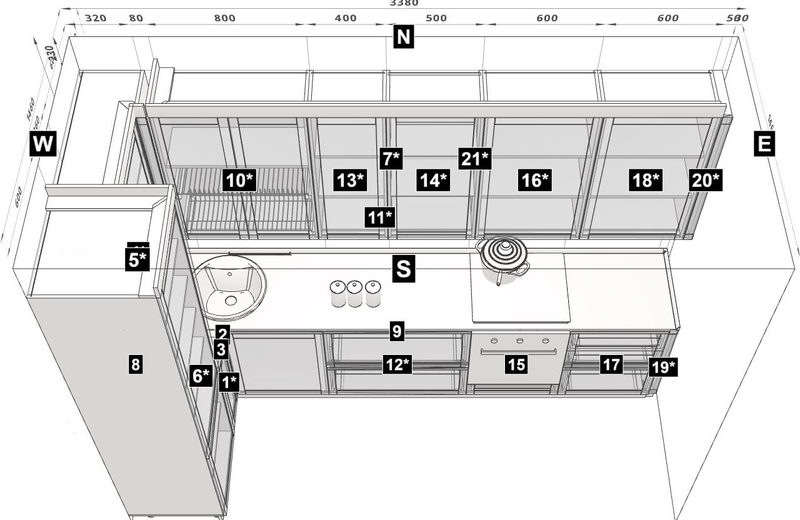
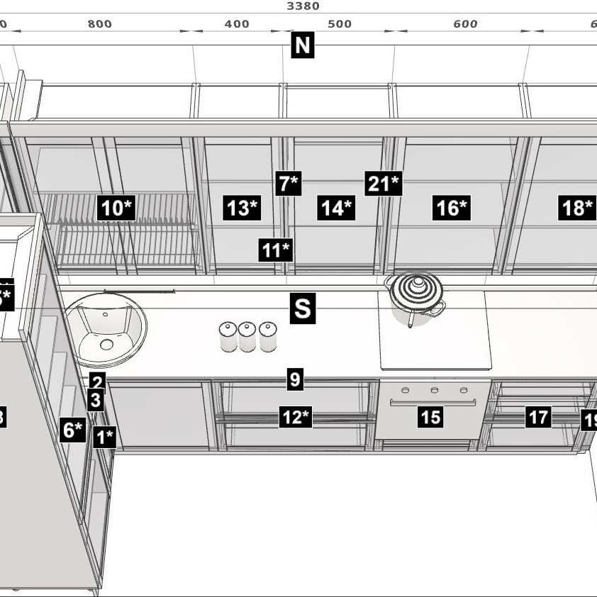
Bucătărie cu fasade din MDF Vopsit coloarea Ral 6033 și blat HPL Gentash 5680 Athena, realizată la comandă în stil clasic. Este o soluție de design unică. Mobilierul este finit într-un verde imaculat, cu mânere de tip gola și led încorporat pentru iluminarea zonei pentru gătit, conferind un aspect elegant, ergonomic și atrăgător. Această bucătărie personalizată adăugă farmec și un aer de rafinament oricărui spațiu de locuit.
Dimensiuni: Lungime - 3380 mm
Adâncime - 1460 mm
Înălțime - 2400 mm
Termen de realizare 30-45 zile.
Ne puteți vizita pe Instagram și Facebook pentru a fi la curent cu cele mai noi proiecte realizate de Lumi.
*Cel mai accesibil preț din descriere reprezintă cea mai mică sumă cu care puteți achiziționa această bucătărie păstrând acelaș vizual. Se modifică doar tipul materialului, furniturii, organizatoarelor și a blatului!
Designer de bucătărie online
Profită de un serviciu unic de amenajări interioare în toate detaliile. Comandarea unei bucătărie cu un astfel de proiect va fi mult mai ușoară și mai convenabilă.
























