Bucătărie Neoclasică Nr.5
Această bucătărie în stil neoclasic este importantă datorită simțului măsurii. Bucătăria arată elegant, scump și spectaculos, fiindcă tehnologiile moderne și proporțiile clasice sunt combinate corect. Elementele decorative de pe fasade arată armonios în combinație cu culorile blatului și a pereților din bucătărie.
Cu toate că peretele din zona blatului de lucru nu are mosaic sau faianță, aplicarea lor poate fi discutată în prealabil cu unul din designerii Lumi, după care proiectul va fi modificat conform cerințelor dumneavoastră, dar desigur toate aceste modificări trebuie să aibă loc înainte ca modelul să fie transmis de inginer în producție. În linii generale, o bucătărie neoclasică crează senzații de superioritate și egalitate concomitent, ceea ce vă oferă o armonie mai specială în momentul în care vă aflați într-un anturaj în acest stil.
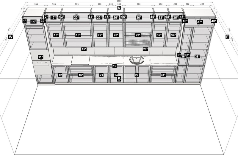
Mărimea bucătăriei:
Lățimea - 5700mm
Adâncimea - 600mm
Înălțimea - 2650mm
Termen de realizare 30-45 zile.
Ne puteți vizita pe Instagram și Facebook pentru a fi la curent cu cele mai noi proiecte realizate de Lumi.
*Cel mai accesibil preț din descriere reprezintă cea mai mică sumă cu care puteți achiziționa această bucătărie păstrând acelaș vizual. Se modifică doar tipul materialului, furniturii, organizatoarelor și a blatului!
Designer de bucătărie online
Profită de un serviciu unic de amenajări interioare în toate detaliile. Comandarea unei bucătărie cu un astfel de proiect va fi mult mai ușoară și mai convenabilă.
























